
防爆防腐全塑荧光灯(日光灯)RLBY53
型号: 防爆防腐全塑荧光灯(日光灯)RLBY53
防爆标志: ExdbebmbIICT6 Gb / ExtbIIIC T80℃Db
RLBY53防爆防腐全塑荧光灯适用于多类防爆危险环境,可在石油、化工、煤矿等场所照明。SMC 壳体防腐抗冲击,防水防尘且带安全联锁;配荧光灯管与防爆镇流器,可带应急功能,无辐射、免维护、节能环保。
额定电压
AC220V 50Hz
防护等级
IP66
防腐等级
WF2
| 额定功率 | 1x18W/1x30W/2x18W/2x30W/3x18W/3x30W |
|---|---|
| 额定电压 | AC220V 50Hz |
| 防爆标志 | ExdbebmbIICT6 Gb / ExtbIIIC T80℃Db |
| 防腐等级 | WF2 |
| 光源色温 | 5500-6000K(色温可订制) |
| 进线螺纹 | M25x1.5/G3/4选配 |
| 外壳防护 | IP66 |
| 引入电缆 | Φ9~Φ14mm |
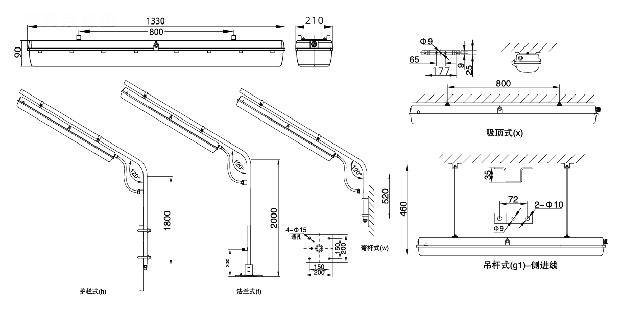
| 外形尺寸 | 1330x210x90mm(单管) |
适用于爆炸性气体环境1区、2区。
适用于可燃性粉尘环境21区、22区。
适用于IIA、IIB、IIC级爆炸性气体环境。
适用于温度级别为T1~T6的环境。
适用于石油开采、炼油、金属冶炼、化工、军工、煤矿厂、热电站、酒厂等危险环境作普通照明和作业照明使用。
结构材料
壳体采用SMC模压成形,强度高,耐冲击,抗腐蚀能力强。 灯具采用专用的防爆灯座。
透明罩采用聚碳酸酯注射成形,高透光率,抗冲击、抗光老化。
灯具采用防水筋密封结构,具有较强的防水、防尘性能。设置方便快捷的锁片式锁紧结构,按标识指示便可快速开合透明罩。
灯具设有机械连锁压紧装置和自动断开功能。打开时,自动切断正常照明和应急电源;闭合时,锁紧密封和自动送电。
光源模块
配用知名品牌荧光灯管,寿命长、光效高。根据灯管类型配套公司特制的防爆镇流器。带应急装置的荧光灯在供电线路失电时,自动切换到应急照明状态。应急装置内有特别设计的过充、放电保护电路。
其它
无电磁和紫外线辐射,能为长时间在室内工作的用户提供优质照明与健康保障。本系列产品属于免维护产品,节能环保。

需要选型帮助或技术支持?
工程师为您提供专业选型建议和防爆照明解决方案。


